Traži

*

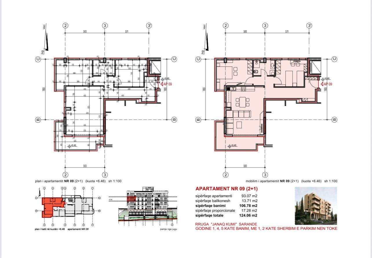
Stan na prodaju Saranda

€ 260.526 124 m² Šifra 19250647
Cijena po m² € 2.101
Mjesto Saranda (Vlora Perfecture)
Zona Stambena zona
Broj soba 2
Sprat 5
Parking mjesto Da
Godina izgradnje U izgradnji
Grijanje Individualno grijanje (Struja)
Energetski razred
Β+
Nivoa 5
Kuhinje 1
Dnevne sobe 1
Kupatila 1
WC 1
Stanje Okrečen, Nezavršen
Način korišćenja Vikendica, Biznis, Kratkoročni najam
Dodatno Očuvan, Neoklasično, Luksuzno, Uknjiženo
  • Udaljenost od mora: 250
  • Lift
  • Balkon
  • Svijetao
  • Unutarnje stepenice
  • Pogled
  • Kućni ljubimci dozvoljeni
  • Stolarija: ALU stolarija
  • Sigurnosna vrata
  • Orijentacija: Sjeverozapad
  • Pristup od: Drugdje
  • Tip stakla: Duplo staklo
  • Svijetao

KARTA

Stan na prodaju Saranda

Video