Kerko

*

Two Bedroom Penthouse for sale in Saranda,Albania

€ 317.994 145 m² Kodi 18709930

Urban Verde Residence
13 Apartament available,2-bedroom apartments and 1-bedroom apartments!
Located in Janaq Kumi street,in a quiet neigbourhood under development ,just 1.5 KM from the city center and 1 KM from the sea.
“A newly constructed residence built to modern standards, offering high-quality construction, safety, and maximum comfort. Featuring a contemporary facade, abundant natural light, and a functional layout. Located in a quiet and accessible area, ideal for long-term living. Premium materials, a high-quality elevator, and carefully finished infrastructure down to the smallest detail.”

APARTAMENT DESCRIPTION:
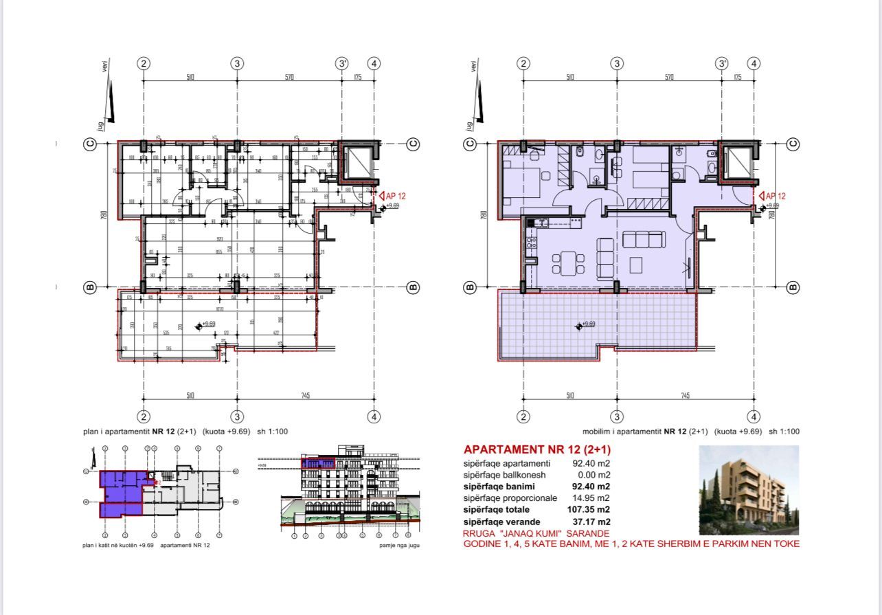
Total area:144.52m2
Gross area:92.40m2
Bedrooms:2
Bathrooms:1
Living Room:1
Kitchen:1
Balcony:1
Elevator:yes


Payment Plan:
40% Signing Contract
30% Concrete finished
27% Key Handing
3% In the handing of the certificate of ownership

Documents % Extra Fees:
0% Agency commission
0.3% Notery Contract
100Euro/person Applications for new certificate
30-100 Euro Translation of the Contract

At Saranda Real Estate honesty is at the heart of everything we do. We provide transparent guidance, fair evaluations, and sincere support through every step of buying or selling. With integrity and professionalism, we make real estate simple, trustworthy, and stress-free.

Çmimi për m² € 2.193
Zona Sarandë (Qarku Vlorë)
Adresa Rruga Idriz Aladhima 55, Sarandë 9701
Zona Zonë rezidenciale
Dhoma 2
Kati 6-ti
Vënd parkimi Po
Viti i ndërtimit Ne ndërtim
Sistemi i Ngrohjes Ngrohje Individuale (Energji elektrike)
Klasa e energjisë
B+
Katet e pronës 6
Kuzhina 1
Dhomë ndënje 1
Banjo 1
WC 1
Statusi E Lyer, Pa Mobilim
Lloj Shtëpi pushimi, Investim, Shtëpi studenti, Qira afatshkurtër
Inf. Shtesë I Mirëmbajtur, Neoklasike, Shtëpi luksoze, Çertifikatë Pronësie
  • Distanca nga deti: 250
  • Ashensor
  • Ballkon
  • Këndore
  • Ventilim Natyral
  • Sip. e ballkonit & verandës: 37 m²
  • Shkallë të brëndshme
  • Pamje
  • Lejohen kafshët
  • Lloji i profileve: Alumin
  • Dyer sigurie
  • Orientim: Veri Perëndim
  • Rrugë: Tokë
  • Blloko aksesin
  • Pamje Ballore
  • Penthouse
  • Opsionet e Xhamit: Xham Dopio
  • Ndriçuar

HARTA

Rruga Idriz Aladhima 55, Sarandë 9701

Video